8寸不锈钢膜壳主要是装填8040标准膜压力容器,一般使用304不锈钢和316不锈钢制造。端盖部分通常有卡箍式、法兰式和内置式三种,填装数从1芯到6芯,压力从150psi到1000psi,几乎满足所有标准反渗透膜、纳滤膜和卷式超滤膜填装使用,适用于对水质要求较高的场合,如食品、饮料、制药,化工等行业的水处理系统。
8寸不锈钢膜壳特点
耐腐蚀性强:不锈钢含有较高比例的镍和钼,能有效防止应力腐蚀和点蚀,适用于处理各种复杂水质,可抵御其中化学物质的侵蚀,延长膜壳使用寿命。
耐高温性能好:能适应一些有温度变化的工作场景,特别SUS316 L材质的膜壳能适应超100℃的温度,远超过现有的膜使用温度;
机械强度高:具有良好的强度和韧性,能承受高压反渗透系统中的高压,不易发生变形或破裂,确保在高压力运行条件下的安全性和稳定性,满足各种规模的水处理系统需求。
加工性能优良:可成形性好,在制造过程中,无论是冲压、拉伸还是弯曲等加工方式,都能保持优良的加工性能,便于生产出各种规格和形状的膜壳,以满足不同应用场景的安装和使用要求。
卫生级级别好:外壳和端盖都使用不锈钢材质,端盖跟膜管拷贝林连接,拆装简易方便,且膜壳内外抛光。这种设计符合卫生级要求。
维护成本低:因其耐腐蚀性好,不易生锈和腐蚀,使用寿命长,同时减少了设备的维护频率和维修成本。
8寸不锈钢膜壳规格性能
规格 | 种类 | 材料 | 连接口位置 | 装膜数量 | 相关信息 |
8寸不锈钢膜壳 | 卡箍式 | SUS304 SUS316L | 端开/侧开 | 1-6芯 | 标准8英寸直径,可运作压力150PSI-600PSI,内外抛光 |
法兰式 | SUS304 SUS316L | 端开/侧开 | 1-6芯 | 标准8英寸直径,作压力150PSI-800PSI,内外抛光 | |
内置式 | SUS304 SUS316L | 端开/侧开 | 1-6芯 | 标准8英寸直径,作压力150PSI-1000PSI,内外抛光 |
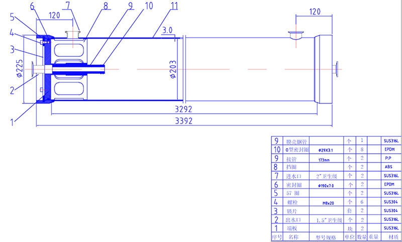
8寸不锈钢膜壳参考图纸(SUS316L内置式8040-3芯)

备注:定制产品,确认图纸后,加工需要10-20天货期。
客户须知
华淼沁水处理经定制制造不锈钢反渗透膜壳和端盖配件,,同时提供膜壳的应用解决方案和售后维护,并提供合理的技术支持。在使用膜壳和配件产品之前,应先查看产品具体使用方法(包括注意事项)。华淼沁可提供设计图纸,和长期,并致力于提高产品的使用周期和效益,降低客户运行成本。