威立雅(苏伊士)E-Cell-3X EDI模块利用传统的离子交换树脂和离子交换膜技术将水中的离子去除,连续电除盐技术,稳定产出5T/H的高品质水质。VEOLIA模块其最大的优点在于:E-Cell-3X 技术采用直流电驱动离子持续地从进水中迁移出来,并穿过离子交换树脂和离子交换膜进入浓水室。同时直流电能够将水分子电离成氢离子和氢氧根离子,持续地对树脂进行再生。因此可以连续、可预知地生产出等同甚至优于混床出水的高纯水。满足半导体、电子、太阳能行业超纯水,化工、钢铁、冶金等重工业脱盐水、锅炉补给水和发电厂锅炉补给水等需要高纯水制备领域。
E-Cell-3X EDI特性和优势
• 浓水分层填充树脂专利技术,提供卓越产水水质
• 产品能耗低
• 逆流运行,降低结垢倾向
• 无需对浓水脱气、无需浓水循环或加盐,系统设计简单
• 产品一致性和长期稳定性卓越
EDI相较于混床
• 工艺先进
• 无需化学品再生
• 运行成本大幅降低
• 连续运行,操作简单
• 减少设备占地空间
E-Clle-3X典型性能参数
模块型号 | E-CLLE-3X | |
尺寸 | 装运重量 | 135kg |
尺寸(长x高x厚) | 31cm x 61cm x 66cm | |
进水 | 总可交换阴离子 | <25 |
电导率(μS/cm) | <43 | |
PH | 4-11 | |
温度(℃) | 5-40 | |
硬度(ppm以CaCO3计) | <1.0 | |
二氧化硅(ppm以SiO2计) | <1.0 | |
TOC(ppm) | <0.5 | |
浊度(NTU) | <1.0 | |
色度(APHA) | 5 | |
余氯(ppm) | <0.05 | |
Fe,Mn,H2S(ppm) | <0.01 | |
氧化剂 | 未检出 | |
油脂 | 未检出 | |
SDI15min | <1.0 | |
出水 | 电阻率(Mohm.cm) | >16 |
PH | 6.5-8.0 | |
二氧化硅去除率 | 高达99%或低于5ppm | |
硼去除率 | >98% | |
工作 | 最大产水量(m³/hr) | 6.4 |
产水量范围(m³/hr) | 2.3-6.4 | |
极水流量设定(L/hr) | 80 | |
回收率 | 87%-97% | |
电压(VDC) | 0-400 | |
电流(ADC) | 0-5.2 | |
进水压力(Bar) | 4.1-6.9 | |
淡水进口/出口 标准压降(Bar) | 1.4-2.8 | |
淡水进口/浓水出口 压差(Bar) | 0.34 | |
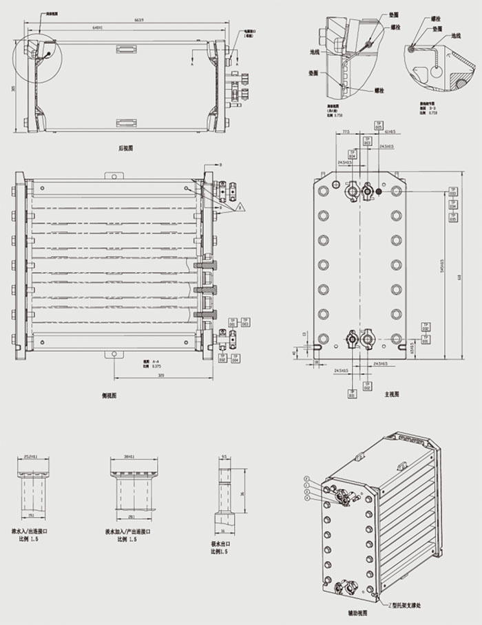
物理参数/膜堆尺寸

质量保证
• 具有CE、CSA及RoHS标识
• FDA 合规(制药用模块)
• 工厂符合ISO9001以及ISO14001认证
• 可提供性能保证
客户须知
华淼沁水处理经销出售VEOLIA威立雅|苏伊士EDI全系列膜堆,确保膜堆都是原装全新正品,具备原厂检测报告和产品说明,同时提供EDI的应用解决方案和售后维护。大力鼓励客户立足于人类健康和环境质量,确保威立雅|苏伊士EDI模块产品不用于预定或测试用途之外的用途。我们可解答您的问题,并提供合理的技术支持。在使用EDI模块产品之前,应先查看产品说明(包括注意事项)。华淼沁可提供最新的产品数据表,并致力于提高产品的使用周期和效益,降低客户运行成本。